Descrição

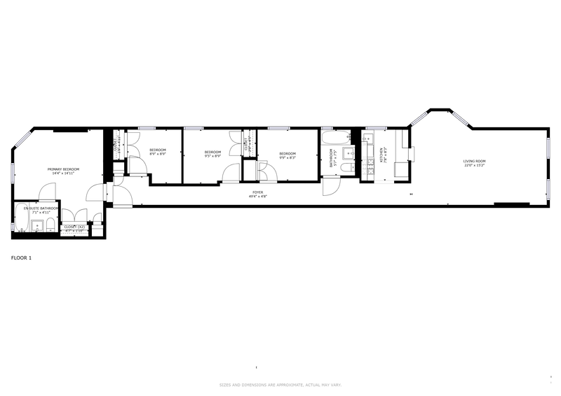
Contrato assinado — raramente disponível: imóvel de 4 quartos e 2 banheiros, com pé-direito alto, belos pisos de madeira, banheiro revestido e muito espaço de armários e armazenamento.

Ótimas proporções e planta inteligente.

Cozinha ampla com janela e eletrodomésticos novos em aço inox: geladeira Haier com freezer inferior, fogão Whirlpool de 6 bocas e micro-ondas Whirlpool.

Armários brancos na cozinha de ótimo tamanho.

O quarto principal possui banheiro suíte.

Este é um edifício pet friendly com superintendente residente, lavanderia no subsolo e depósito sob solicitação.

Bicicletário em breve.

Próximo das linhas expressas 2/3 e das linhas A/B/C/D na 145th Street, além das linhas de ônibus M2, M7, M10 e M102.

Ótimos restaurantes na região, incluindo Londels, Jacobs Ponty Bistro, Ruby’s Vintage, Harlem Nights e muitos outros.

Foodtown fica próximo e o Whole Foods está na 125th Street.

Este é um cooperativo HDFC e há restrições de renda.

Limites de renda: US$ 112.080 para 1 pessoa; US$ 128.150 para família de 2 pessoas; US$ 144.120 para 3 pessoas; US$ 160.080 para 4 pessoas.

Deve ser residência principal.

Flip tax de 30% sobre o lucro, pago pelo vendedor.

Endereço

  • Endereço 133 West 140th Street, Central Harlem, Manhattan, NY 10030
  • País Estados Unidos
Abrir no Google Maps

Visão geral

  • ID da propriedade 10534
  • Preço R$2.744.500
  • Tipo de propriedade
  • Situação da propriedade
  • Bedrooms 4
  • Bathrooms 2
  • Ano de construção 1903

Obter direções

Avaliações e Críticas

0
  • 5 0%
  • 4 0%
  • 3 0%
  • 2 0%
  • 1 0%