Descrição

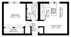
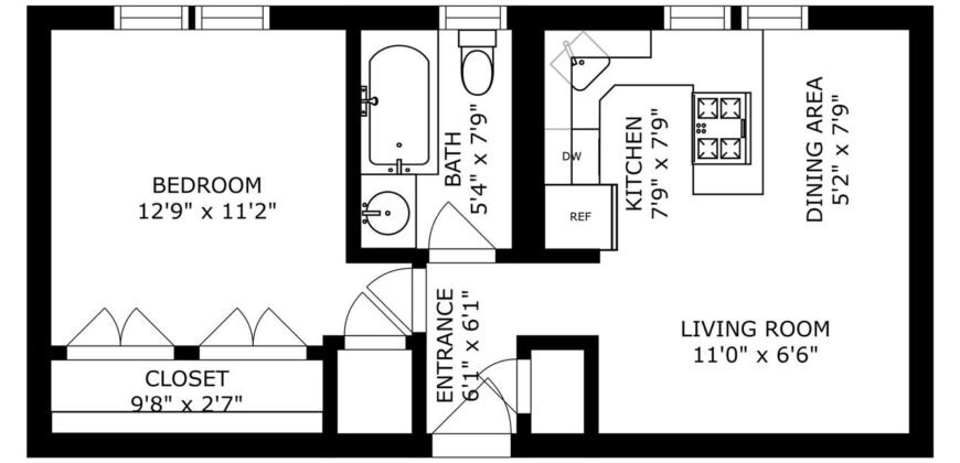
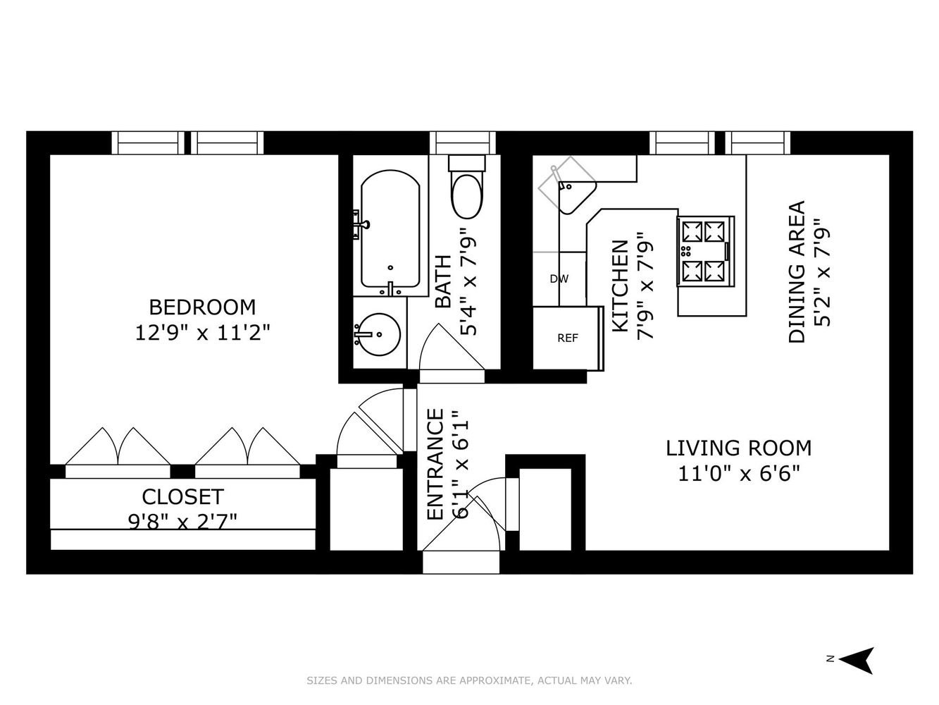
Bem-vindo ao 2D, um sereno apartamento de 1 quarto em um belo e impecável edifício pré-guerra no Upper East Side.

Entre pelo foyer, pendure seu casaco no armário do hall e relaxe na sala de estar com cozinha aberta.

A cozinha possui eletrodomésticos em aço inox, incluindo lava-louças, muitos armários e boa área de bancada, perfeita para receber amigos.

O quarto é espaçoso e conta com uma parede inteira de armários sob medida.

O banheiro com janela tem banheira e ducha manual, com acesso pelo foyer.

Outros destaques incluem belos pisos de madeira, janelas amplas, molduras, iluminação personalizada e pé-direito alto.

Este co-op é pet friendly e oferece superintendente residente, elevador, depósito comum, bicicletário e lavanderia.

Excelente localização próxima às linhas 4/5/6/Q, Whole Foods, Central Park e Equinox.

Venha conhecer e se apaixonar!

Atualmente há um assessment de 12 meses no valor de US$ 177,65 referente à Local Law 11.

O assessment termina em novembro de 2023.

Endereço

  • Endereço 166 East 92nd Street, Upper East Side, Manhattan, NY 10128
  • País Estados Unidos
Abrir no Google Maps

Visão geral

  • ID da propriedade 10612
  • Preço R$2.634.500
  • Tipo de propriedade
  • Situação da propriedade
  • Bedrooms 1
  • Bathrooms 1
  • Ano de construção 1927

Obter direções

Avaliações e Críticas

0
  • 5 0%
  • 4 0%
  • 3 0%
  • 2 0%
  • 1 0%